広島県広島市に建築された、JWOOD工法初の木造4階建て宿泊施設です。
JWOODの強度を活かし独自の構造設計アイディアで、3階建ての延長で木造4階建て宿泊施設を105幅材で実現しています。
耐火建築物で石膏ボードの二重張りがありつつも室内や階段の幅員を確保する工夫が施されています。
周辺には外国人観光客も多く訪れる観光スポットが多く、大きな荷物を持った宿泊者への配慮にも繋がっています。
物件概要
用途:宿泊施設
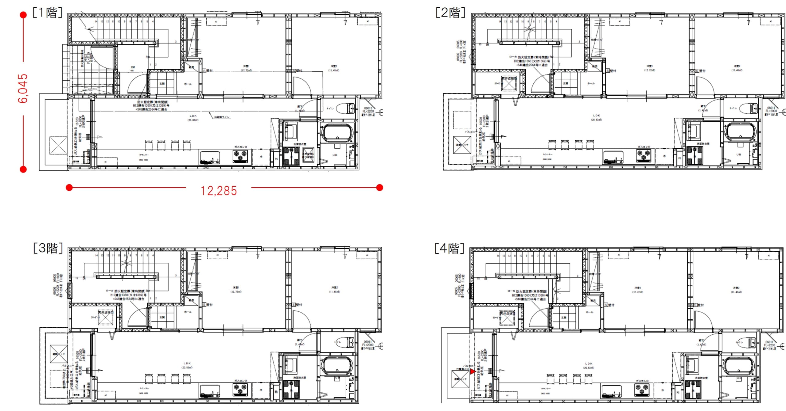
規模:延床面積 272.62㎡(95.85坪) 木造4階建て
竣工:2026年2月
建築地:広島県広島市
建物外観
バルコニーの凹凸と階段室の四角い小窓が、ファサードの程よいアクセントになっています。

建物内観
間口の狭い敷地に建築されていますが、各室へ移動する共用部の廊下・階段室を上手く配置し、室内はLDKと個室が2室配置されており、
長期滞在もストレスなく過ごせそうです。
また、建具のドレタスシリーズのウォームグレーの色合いがシンプルな室内にマッチしています。


各階平面図、立面図


構造的な特徴
通し柱を設けることで、1階の柱頭、2階の柱脚に必要とされる大きなHD金物が不要となり、現場施工性に配慮した計画になっています。
また、耐力壁は2重壁を多用しています。

